联系我们

昆明个人贷款服务中心

云南省昆明市正义路58号

冯经理

18083855797

18083855797

18083855797

屋中屋:昆明深山老林古树茶空间 / 空崆建筑

发布者:admin发布时间:2023-01-06访问量:150



△ 立面内收形成可以让人停留的灰空间 ©唐徐国




△ 一层会客空间与室外的通透联系,以及小木屋与一层空间的相对关系 ©唐徐国




设计单位 空崆建筑


项目地点 云南昆明


建成时间 2022年6月


项目面积 150平方米




本文文字由设计单位提供。




小时候,有一个层层递进而又无限循环的叙事结构:“从前有座山,山上有座庙,庙里面有个老和尚,老和尚对小和尚说:“从前有座山,山上有座庙,庙里面有个老和尚……”




这是大人们试图将天晚了还不入睡的小朋友带入梦境的一个方法,而在这次设计的机缘巧合下,我们将这个叙事结构放到了深山老林茶空间的设计中,希望通过空间营造,带大家进入深山老林中的茶之秘境。




项目选址于昆明官渡区的一个大型茶城中,茶城里有数百家与茶相关的商铺,迈入茶城,就进入了一个茶(以普洱茶为主)的大千世界,如果是第一次进入这样的茶城,就像人置入深林,很容易迷失方向。






△ 茶城空间肌理及典型沿街连续立面 ©空崆建筑








△ 设计改造单元在茶城中位置示意 ©空崆建筑




业主希望在这里打造一个全新的茶空间,作为品牌文化展示、新老客户对接洽谈、朋友茶聚,以及普洱茶文化传播的一个载体。




在这茶的大千世界里,如何让熟悉品牌的人快速找到店铺?如何让不熟悉品牌的人在这个线下空间与品牌达成第一次接触,并进一步了解其品牌文化及价值?这是设计初期我们面临的两个最实际的问题。








勐海深山老林茶山茶园 ©深山老林




我们发现,茶城里几乎所有店铺都将自己的立面推到了物业允许的最外边界,为了让自己的店招脱颖而出,甚至有一些店铺的门头凸出原建筑立面不少,这样的现状存在当然是有其合理性的。




但是去顶格做满,去向外求显然并不是唯一的方法。我们决定将沿街立面内收,空出一小块面对街巷的玄关灰空间,创造一个具有向内吸引力的空间场,将人的视线与脚步,引导进入我们的茶空间。








△ 沿街立面内收,以退为进示意 ©空崆建筑








△ 沿街立面 ©唐徐国








△ 立面内收形成的可以让人停留的灰空间 ©唐徐国








△ 空间开业时前来的茶兄弟们都喜欢坐在这儿 ©空崆建筑








△ 人再多一点也可以 ©朱力




项目的原始空间是一个面宽5.2米,进深11.6米,总面积约120平方米的空间。其一层高5米(梁底净高4.3米),二层高3米(梁底净高2.3米),面宽较窄,进深挺深。




于是我们决定利用这较大的进深和层高,创造一个大盒子里有小房子,小房子里还有一个小木屋的“屋中屋”空间嵌套模型,并且小房子与小木屋都各自设有一套独立的楼梯,将人从上一层次的空间引入下一层次的空间。这样的设置既是空间语法上的一种嵌套,也是一种路径与目的地之间相关联的递进的暗示。








△ 三层嵌套 “屋中屋” 模型拆解 ©空崆建筑








△ “屋中屋” 模型透视示意图 ©空崆建筑




在这三层嵌套空间体系中,第一层次是5.2×11.6×5米的原始店铺单元,是从街巷进入茶空间的第一界面。




第二层次是一个4.2×10×5米的一个简洁有力的方盒子,这是主要的茶展示及品鉴空间,由两片水洗石饰面的厚墙进行限定。面向街巷的一面墙作为主立面,设计了内嵌在墙内的木框架立面以及可以完全开启的折叠窗,便于从街巷到茶空间的视线及空间联系。








△ 嵌入在第一界面单元当中的方盒子(第二层次) ©唐徐国




而第三层次是一个在方盒子空间后半部分的3.2×4.2×4.2米的小木屋,小木屋下部用工字钢架空。这个做法来源于我们在西双版纳观察到的傣族民居的底层架空做法——用木柱将建筑架空抬起,是对当地自然条件的应对,这样既可以增加通风防潮,又可以避免蚊虫蛇等动物进到人活动的空间,还可以利用架空空间堆放一些杂物和柴火。而被抬起的空间,才是人们居住生活的空间,而在本项目中,我们就将主人茶室设置在了这个小木屋中。








△ 西双版纳傣族民居小木屋,底层木柱架空,既可以通风防潮防虫,又可以存放杂物 ©空崆建筑








△ 内置在方盒子中的架空小木屋(第三层次) ©唐徐国








△ 从方盒子上开的门洞往左看到内部的小木屋,往右是通往夹层和二楼的通道 ©唐徐国








△ 挑空的小木屋和上悬窗 ©唐徐国








△ 一层会客空间与室外的通透联系,以及小木屋与一层空间的相对关系 ©唐徐国




夹在一层小房子的厚墙与原始大盒子墙面之间的,是一段狭窄的楼梯,这段狭窄的楼梯将需要上楼的人带去二层空间,中间会经过一个半层平台,进行楼梯方向的转换。这既是与空间功能体块布局和层高相呼应的高差处理,同时也创造出了我们想在这里打造的“山有小口,仿佛若有光,从口入,初极狭,才通人,复行数十步,豁然开朗”的层层递进的行进体验,还是对前往勐海“深山老林”中茶山茶园的访茶之路的一种隐喻。








△ 玄关处的灯箱 ©空崆建筑








△ 从玄关入口往上走的通道 ©朱力








△ 夹层转折处,一边通往主人茶室,一边继续上楼 ©空崆建筑








△ 从夹层平台进入主人茶室 ©唐徐国








△ 主人茶室出来,可以通过单独的悬挑钢楼梯下到楼下会客空间 ©唐徐国








△ 从水洗石厚墙上悬挑出来的钢楼梯 ©唐徐国




原始任务书中需要一个能容纳10-15人的多功能空间,可以做一些茶文化相关的交流活动,我们将这个空间设在了原始空间的2楼。因为这一层梁底净高太低(只有2.3米)且位于空间的较居中位置,所以我们做了一组折顶吊顶,将大梁隐藏于吊顶中,形成一个整体顶面,并在折顶吊顶的下口合适位置,安装了一组移门和一组折叠门的轨道,可以根据不同场景的使用需求,将移门和折叠门灵活开启,分隔出适合当时使用场景的空间。








△ 二层空间在不同隔断状态下的使用模型拆解 ©空崆建筑








△ 二层休息空间 ©唐徐国








△ 可以灵活开启封闭的老师茶席空间 ©唐徐国








△ 为了隐藏大梁做的折板吊顶 ©唐徐国




我们所熟知的云南,是一个多样性极其丰富的地区,从横断山脉的地形褶皱、雪山草甸,到金沙江畔的干热河谷,再到西双版纳的热带雨林、茶山茶园。建筑上既有藏族羌族的碉楼,又有彝族白族的夯土屋,还有傣族哈尼族基诺族的木屋竹楼。民间手工艺里既有黑陶紫陶、打铜打银,也有雕木编竹、镶金琢玉。




即便仅仅将目光集中到普洱茶的产区,我们也能发现非常多有趣的人文、自然、材料、建筑方面的信息,当然我们也想将这些信息或者意向带到省会昆明的这个茶空间里,尤其是当这个茶空间位于一个外部整体空间比较重复乏味或者说比较单调的茶城里的时候。






△ 模型剖面 ©空崆建筑




因此,我们在茶空间中使用了较为粗糙的红壤烧结砖作为主要公共空间的铺地,厚墙上用金沙江中淘出的细砂水洗石工艺作为饰面。立面木窗和小木屋则都是用实木构造完成。局部的背景墙,我们选用了木丝板,因为木丝板的压制工艺和肌理,跟普洱茶的压制和原理有点异曲同工的意思。






△ 多种材料 ©空崆建筑






△ 挑选大理石与实木材 ©空崆建筑






△ 材料运用节点分析 ©空崆建筑






△ H型钢柱木板饰面及柱头铜片 ©唐徐国




我们特意设计加工的两张茶桌,是钢结构和大理石的组合。我们在昆明郊区一个巨大的石材市场转悠了一整个下午,终于偶遇的一块超出我们原先预想的,颜色纹理都极为契合的大理石,于是立刻下定并嘱咐老板一定帮我们留好,小心加工成型。最后,施工方还特意找到了鹤庆打铜的师傅,给手工锤了一块铜圆饼作为门口的品牌logo。








△ 大理石茶台 ©唐徐国








△ 背景墙上放在定制茶托上的茶饼 ©朱力




正如普洱茶从生茶熟茶需要一个长时间的转化过程一样,我们希望在这个茶空间里的各种建造材料,也可以随着使用时间的推移,慢慢转化出更有机和丰富的质感,逐步达到融合的平衡,最终形成良好的气场,让大家在里面可以定定心心的喝上一杯深山老林的好茶。








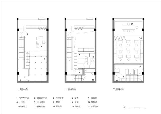
△ 各层平面图 ©空崆建筑








完整项目信息


项目名称:昆明深山老林古树茶空间


项目地址:昆明市官渡区邦盛茶城


业主:勐海深山老林茶业有限责任公司


空间改造及室内设计:空崆建筑


主持建筑师:甘泉


设计团队:孙希、乐丰、佩均、杨长青


施工单位:云南龙宇建设工程有限公司


施工负责:魏海涛、冯水良、李棋江、宋细凤


室内面积:150平方米


主要材料:工字钢、烧结砖、水洗石、实木板材、木丝板、阳光板


设计时间:2021年11月—2022年1月


施工时间:2022年3月—2022年6月


摄影:空崆建筑、唐徐国、朱力




【观在线设计师品牌计划】通过全方位打造设计师独立品牌,推动国内设计师走向世界,并针对性地提供专项资金扶持,实现品牌设计师全体系孵化,构建出“产业赋能、红利共享“的资源服务平台体系。


电话
复制成功

微信号: 18083855797

我知道了
180-8385-5797
微信号:18083855797 添加微信
18083855797